1.主要起防水、磨耗,防滑或改善碎(砾)石作用的路面面层是(D)。
A.热拌沥青湿合料面层
B.冷拌沥青混合料面蹭层
C.沥青贯入式面层
D.沥青表面处治面层
2.淤泥、淤泥质土及天然强度低(C)的黏土统称为软土。
A.压缩性高,透水性大
B.压缩性高、透水性小
C.压缩性低、透水性大
D.压缩性低、透水性小
3.存在于地下两个隔水层之间,具有一定水头高度的水,称为(C)。
A.上层滞水
B.潜水
C.承压水
D.毛细水
4.以粗集科为主的沥青混合料复压宜优先选用(A)。
A.振动压路机
B.钢轮压路机
C.重型轮胎压路机
D.双轮钢筒式压路机
5.现场绑扎钢筋时,不需要全部用绑丝绑扎的交叉点是( C)。
A.受力钢筋的交叉点
B.单向受力钢筋网片外围两行钢筋交叉点
C.单向受力钢筋网中间部分交叉点
D.双向受力钢筋的交叉点
6.关于桥梁支座的说法错误的是(D )。
A.支座传递上部结构承受的荷载
B.支座传递上部结构承受的位移
C.支座传递上部结构承受的转角
D.支座对桥梁变形的约束应尽可能的大,以限制梁体自由伸缩
7.关于先张法预应力空心板梁的场内移运和存放的说法,错误的是(D )。
A.移运时,混凝土强度不得低于设计强度的75%
B.存放时,支点处应采用垫木支撑
C.存放时间可长达3个月
D.同长度的构件,多层叠放时,上下层垫木在竖直面上应适当错开
8.钢梁制适企业应向安装企业提供的相关文件中,不包括( B)。
A.产品合格证
B.钢梁制造环境的温度、湿度记录
C.钢材检验报告
D.工厂试装记录
【解析】钢梁制造企业应向安装企业提供下列文件:
1 )产品合格证。2) 钢材和其他材料质量证明书和检验报告。3 )施工图,拼装简图。4) 工厂高强度螺栓摩擦面抗滑移系数试验报告。5 )焊缝无损检验报告和焊缝重大修补记录。6) 产品试板的试验报告。7) 工厂试拼装记录。8) 杆件发运和包装清单。
9.柔性管道工程施工质量控制的关键是(C )。
A.管道接口
B.管道基础
C.沟槽回填
D.管道坡度
10.地铁基坑采用的围护结构形式很多。其中强度大、开挖深度大,同时可兼做主体结构部分的围护结构是(B)。
A.重力式水泥土挡墙
B.地下连续墙
C.预制混凝土板桩
D.SMW工法桩
11.盾构接收施工,工序可分为①洞门清除、②到达段挺进、③接收基座安装与固定、④洞门密封安装、⑤盾构接收。施工程序正确的是(A)。
A.①-③-④-②-⑤
B.①-②-③-④-⑤
C.①-④-②-③-⑤
D.①-②-④-③-⑤
12.关于沉井施工技术的说法,正确的是(B)。
A.在粉细砂土层采用不排水下沉时,井内水位应高出井外水位0.5m
B.沉井下沉时,需对沉井的标高、轴线位移进行测量
C.大型沉井应进行结构内力监测及裂缝观测
D.水下封底混凝土强度达到设计强度等级的75%时,可将井内水抽除
【解析】A错误,流动性土层开挖时,应保持井内水位高出井外水位不少于1m;B正确;C错误,大型沉井应进行结构变形和裂缝观测。D错误,水下封底混凝土强度达到设计强度等级,沉井能满足抗浮要求时,方可将井内水抽除。
13.关于水处理构筑物特点的说法中,错误的是(C)。
A.薄板结构
B.抗渗性好
C.抗地层变位性好
D.配筋率高
14.下列关于给水排水构筑物施工的说法,正确的是(B)。
A.砌体的沉降缝应与基础沉降缝贯通,变形缝应错开
B.砖砌拱圈应自两侧向拱中心进行,反拱砌筑顺序反之
C.检查并砌筑完成后再安装踏步
D.预制拼装构筑物施工速度快、造价低,应推广使用
15.金属供热管道安装时,焊缝可设置于(A)。
A.管道与阀门连接处
B.管道支架处
C.保护套管中
D.穿过构筑物结构处
16.渗沥液收集导排系统施工控制要点中,导排层所用卵石的(C)含量必须小于10%。
A.碳酸钠(Na2CO3)
B.氧化镁(MgO)
C.碳酸钙(CaCO3)
D.氧化硅(SiO2)
17.为市政公用工程设施改扩建提供基础资料的是原设施的(D)测量资料。
A.施工中
B.施工前
C.勘察
D.竣工
18.下列投标文件内容中,属于经济部分的是(B)。
A.投标保证金
B.投标报价
C.投标函
D.施工方案
19.在施工中常见的风险种类与识别中,水电、建材不能正常供应属于(C)。
A.工程项目的经济风险
B.业主资格风险
C.外界环境风险
D.隐含的风险条款
20.下列水处理构筑物中,需要做气密性试验的是(A)。
A.消化池
B.生物反应池
C.曝气池
D.沉淀池
21.下列沥青混合料中,属于骨架-空隙结构的有(BD)。
A.普通沥青混合料
B.沥青碎石混合料
C.改性沥青混合料
D.OGFC排水沥青混合料
E.沥青玛脂碎石混合料
22.再生沥青混合料生产工艺中的性能试验指标除了矿料间隙率、饱和度,还有(ACE)。
A.空隙率
B.配合比
C.马歇尔稳定度
D.车辙试验稳定度
E.流值
23.桥梁伸缩缝一般设置于(AB)。
A.桥墩处的上部结构之间
B.桥台端墙与上部结构之间
C.连续梁桥最大负弯矩处
D.梁式柳的跨中位置
E.拱式桥拱顶位置的桥面处
24.地铁车站通常由车站主体及(ABCD)组成。
A.出入口及通道
B.通风道
C.风亭
D.冷却塔
E.轨道及道床
25.关于直径50m的无粘结预应力混凝土沉淀池施工技术的说法,正确的有(ABC)。
A.无粘结预应力筋不允许有接头
B.封锚外露预应力筋保护层厚度不小于50mm
C.封锚混凝土强度等级不得低于C40
D.安装时,每段预应力筋计算长度为两端张拉工作长度和锚具长度
E.封锚前无粘结预应力筋应切断,外露长度不大于50mm
26.在采取套管保护措施的前提下,地下燃气管道可穿越(CD)。
A.加气站
B.商场
C.高速公路
D.铁路
E.化工厂
27.连续浇筑综合管廊混凝土时,为保证混凝土振捣密实,在(ABCE)部位周边应辅助人工插捣。
A.预留孔
B.预埋件
C.止水带
D.沉降缝
E.预埋管
28.关于工程竣工验收的说法,正确的有(BDE)。
A.重要部位的地基与基础,由总监理工程师组织,施工单位、设计单位项目负责人参加验收
B.检验批及分项工程,由专业监理工程师组织施工单位专业质量或技术负责人验收
C.单位工程中的分包工程,由分包单位直接向监理单位提出验收申请
D.整个建设项目验收程序为:施工单位自验合格,总监理工程师验收认可后,由建设单位组织各方正式验收
E.验收时,对涉及结构安全、施工功能等重要的分部工程,需提供抽样检测合格报告
29.关于因不可抗力导致相关费用调整的说法,正确的有(ACDE)。
A.工程本身的损害由发包人承担
B.承包人人员伤亡所产生的的费用,由发包人承担
C.承包人的停工损失,由承包人承担
D.运至施工现场待安装设备的损害,由发包人承担
E.工程所需清理、修复费用,由发包人承担
30.在设置施工成本管理组织机构时,要考虑到市政公用工程施工项目具有(ABC)等特点。
A.多变性
B.阶段性
C.流动性
D.单件性
E.简单性
案例一
某单位承建城镇主干道大修工程,道路全长2km,红线宽50m,路幅分配情况如图1-1所示,现状路面结构为40mmAC-13细粒式沥青混凝土上面层,60mmAC-20中粒式沥青混凝土中面层,80mmAC-25粗粒式沥青混凝土下面层。工程主要内容为:①对道路破损部位进行翻挖补强。②铣刨40mm|旧沥青混凝土上面层后,加铺40mmSMA-13沥青混凝土上面层。接到任务后,项目部对现状道路进行综合调查,编制了施工组织设计和交通导行方案。并报监理单位及交通管理部门审批,导行方案如图1-2所示,因办理占道、挖掘等相关手续,实际开工如期比计划日期滞后2个月。

道路封闭施工过程中,发生如下事件:事件1: 项目部进场后对沉陷、坑槽等部位进行了翻挖探查,发现左幅基层存在大面积弹软现象,立即通知相关单位现场确定处理方案,拟采用400mm厚水泥稳定碎石分两层换填,并签字确认。事件2: 为保证工期,项目部集中力量迅速完成了水泥稳定碎石基层施工,监理单位组织验收结果为合格。项目部完成AC-25下面层施I后对纵向接缝进行了简单清扫便开始摊铺AC-20中面层,最后转换交通进行右幅施工。由于右幅道理基层没有破损现象。考虑到工期紧,在沥青摊铺前对既有路面铣刨、修补后,项目部申请全路线封闭施工,报告批准后开始进行上面层摊铺工作。
简答题:
1、交通导行方案还需报哪个部门审批?
答案:交通导行方案还应经道路管理部门的批准后组织实施。
2、根据交通导行平面示意图,请指出图中①、②、③、④各为哪个疏导作业区?
答案:①--警告区;②--缓冲区;③--作业区;④--终止区
3、事件1中,确定基层处理方案需要哪些单位参加?
答案:建设单位、监理单位、原设计单位、现设计单位、勘察单位、地下结构产权单位
4、事件2中,水泥稳定碎石基层检验与验收的主控项目有哪些?
答案:原材料配合比、含水量、拌合均匀性、压实度、7d 无侧限抗压强度
5、请指出沥青摊铺工作的不妥之处,并给出正确做法。
答案:纵向接缝进行简单清扫错误,应涂喷粘层油后进行中面层的施工。
案例二
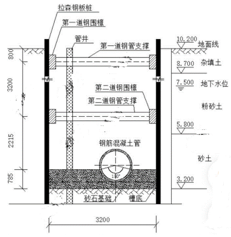
某公司承建一项城市污水管道工程,管道全长1.5km。采用DN1200mm的钢筋混凝土管,管道平均覆土深度约6m。考虑现场地质水文条件,项目部准备采用“拉森钢板桩+钢围檁+钢支撑”的支护方式,沟槽支护情况详见图2。

图2沟槽支护示意图(标高单位: m;尺寸单位: mm)项目部编制了“沟槽支护,土方开挖”专项施工方案,经专家论证,因缺少降水专项方案被制定为“修改后通过”。项目部经计算补充了管井降水措施,方案获“通过”,项目进入施工阶段。在沟槽开挖到槽底后进行分项工程质量验收,槽底无浸水扰动,槽底高程、中线、宽度符合设计要求。项目部认为沟槽开挖验收合格,拟开始后续垫层施工。在完成下游3个井段管道安装及检查井砌筑后,抽取其中1个井段进行了闭水试验。试验渗水量为0.0285L/(min. m)。[规范规定ND1200钢筋混凝土管合格渗水量不大于43.3m/24h.km]。为加快施工进度,项目部拟增加现场作业人员。
简答题
1、写出钢板桩围护方式的优点。
答案:强度高,桩与桩之间连接紧密,隔水效果好,具有施工灵活、板桩可重复使用等优点。
2、管井成孔时是否需要泥浆护壁,写出滤管与孔壁间填充滤料的名称,写出确定滤管内径的因素是什么?
答案:
(1)是,需要泥浆护壁。
(2)磨圆度好的硬质岩石成分的圆砾。
(3)滤管内径应按满足单井设计流量要求配置的水泵规格确定。
【解析】管井的滤管可采用无砂混凝土滤管、钢筋笼、钢管或铸铁管。成孔工艺应适合地层特点,对不易塌孔、缩径地层宜采用清水钻进;采用泥浆护壁钻孔时,应在钻进到孔底后清除孔底沉渣并立即置入井管、注入清水,当泥浆相对密度不大于1.05 时,方可投入滤料。滤管内径应按满足单井设计流量要求而配置的水泵规格确定,管井成孔直径应满足填充滤料的要求;滤管与孔壁之间填充的滤料宜选用磨圆度好的硬质岩石成分的圆砾,不宜采用棱角形石渣料、风化料或其他带质岩石成分的砾石。井管底部应设置沉砂段。
3、写出项目部”沟槽开挖"分项工程质量验收中缺失的项目。
答案:①槽底无受冻、②沟槽几何尺寸(沟槽高度,槽顶高程、中线、宽度,边坡坡度),③有无超挖,④地基承载力;⑤边坡坡度;⑥护坡措施等
【解析】综合管廊垫层、基础、底板施工前应对基底轴线位置、沟槽(基坑)几何尺寸及标高进行复验。基底不应浸泡或受冻,不得扰动、超挖,地基承载力应符合设计要求。
4、列式计算该井段闭水试验渗水量结果是否合格?
答案:43.30m3/ (24h·km)=43.30X103L/ (24X 60min·103m) =0.030L/ (min·m)
0.0285L/ (min·m) <0030L(min·m),故渗水量结果合格。
5、写出新进场工人上岗前应具备的条件。
答案:接受公司、项目、班组的三级安全培训教育,经考核合格后,方能上岗。
案例三
某公司承建一座跨河城市桥梁, 基础均采用φ1500mm钢筋混凝土钻孔灌注桩,设计为端承桩,桩底嵌入中风化岩层,2D (D为桩基直径) ;桩顶采用盖梁连接,盖梁高度为1200mm,顶面标高为20.000m。 河床地基揭示依次为淤泥、淤泥质黏土、黏土、泥岩、强风化岩、中风化岩项目部编制的桩基施工方案明确如下内容: (1)下部结构施工采用水上作业平台施工方案,水上作业平台结构为φ600mm钢管桩+型钢+人字钢板搭设,水上作业平台如图3所示(2) 根据桩基设计类型及桥位、水文、地质笔情况设备选用“2000型”正循环回旋钻孔施工(另配压轮钻头等),成桩方式未定(3) 图中A结构名称和使用的相关规定(4)由于设计对孔底沉渣厚度未做具体要求,灌注水下混凝土前,进行二次清孔,当孔底沉渣厚度满足规范要求后,开始灌注水下混凝土。

1、结合背景资料及图3,指出水上作业平台应设置哪些安全设施?
答案:安全护栏,安全警示牌,夜间警示灯,安全防护网,防撞设施,供作业人员作业的爬梯。
2、施工方案(2)中,指出项目部选择钻机类型的理由及成桩方式。
答案:理由:①该桥为跨河大桥,而正循环钻机适用于水下作业;
②该桥深入至中风化岩,正循环适用于该土层
③正循环钻机速度快,效率高。
④正循环清渣效果好
成桩方式:泥浆护壁成孔成桩。
3、施工方案(3) 中,所指构件A的名称是什么?构件A施工时需使用哪些机械配合,构件A应高出施I水位多少米?
答案:①A—— 钢护筒
②需要起重机吊装、平板拖车、液压振动锤
③钢护筒应高出施工水位2m
4、结合背景资料及图3,列式计算3#-①桩的桩长。
答案:桩顶标高: 20.000- 1.200=18.800m。
桩底标高: -15.000-2X1 .500=-18.000m.
桩长:桩顶标高一桩底标高=18.800- (-18.000) = 36.800m.
5、在施工方案(4)中,指出孔底沉渣厚度的最大允许值。
答案: 100mm.
案例四
某市为了交通发展需修建一条双向快速环线(如图4 -1所示),里程桩号为K0+000~K19+998.984。建设单位将该建设项目划分为10个标段。项目清单如表4所示,当年10月份进行招标,拟定工期为24个月,同时成立了管理公司,由其代建。

各投标单位按要求中标后,管理公司召开设计交底会,与会参加的有设计、勘察、施工单位等。开会时,有③、⑤标段的施工单位提出自己中标的项目中各有1座泄洪沟小桥的桥位将会制约相邻标段的通行,给施工带来不便,建议改为过路管涵,管理公司表示认同,并请设计单位出具变更通知单,施工现场采取封闭管理,按变更后的图纸组织现场施工。③标段的施工单位向管理公司提交了施工进度计划横道图(如图4-2所示)

1、按表4所示,根据各项目特征,该建设项目有几个单位工程?写出其中⑤标段A的项目内容。①标段完成的长度为多少米?
答案:30个单位工程。
[A]为道路工程、排水工程、沿路跨河中小桥。
十标段完成的长度为: 19998.984-18000=1998.984米
2、成立的管理公司担当哪个单位的职责?与会者还缺哪家单位?
答案:管理公司担当建设单位职责;还缺少监理单位
3、③⑤标段的施工单位提出变更申请的理由是否合理?针对施工单位提出的变更设计申请,管理公司应如何处理?为保证现场封闭施工,施I工单位最先完成与最后完成的工作是什么?
答案:
(1)合理。
(2)施工单位提出设计变更申请后,提交监理单位审核,由管理公司提交给设计单位。设计单位出具设计变更单,经监理单位审查后下发施工单位施工。
(3)最先完成:围墙(挡)。最后完成:警示标牌布置与悬挂。
4、写出③标段施工进度计划横道图中出现不妥之处,应该怎样调整?
答案:过路管涵从20月开始施工不妥。应调整为从3月初开始施工。道路工程和排水工程同时施工不妥,应先施允工排水工程,工作面许后再开始施工道路工程。
案例五
A公司承建某地下水池工程,为现浇钢筋混凝土结构。混凝土设计强度为C35,抗渗等级为P8.水池结构内设有三道钢筋混凝土隔墙,顶板,上设置有通气孔及人孔,水池结构如图5-1、5-2所示。A公司项目部将场区内降水工程分包给B公司。结构施工正值雨期,为满足施工开挖及结构抗浮要求,B公司编制了降排水方案,经项目部技术负责人审批后报送监理单位。水池顶板混凝土采用支架整体现浇,项目部编制了顶板支架支拆施工方案,明确了拆除支架时混凝土强度、拆除安全措施,如设置上下爬梯、洞口防护等。项目部计划在顶板模板拆除后,进行底板防水施工,然后再进行满水试验,被监理工程师制止。项目部编制了水池满水试验方案,方案中对试验流程、试验前准备工作、注水过程、水位观测、质量、安全等内容进行了详细的描述,经审批后进行了满水试验。

1、B公司方案报送审批流程是否正确?说明理由。
答案:B单位编制的降水方案,因为基坑深度已达到5m,属于超过一定规模的危险性较大工程, 所以需要进行专家论证。①方案应当由A公司(施工总承包单位)技术负责人及B公司技术负责人共同审核签字盖章后上报总监理工程师审查; ②再由A公司(施工总承包单位)组织召开专家论证会对方案进行论证后,依据专家意见修改施工方案;③修改后的方案再经审核审批后,方可实施。
2、请说明B公司降水注意事项、降水结束时间。
答案:(1)①水位应将至基坑底下500mm;
②雨期施工中要在基坑四周设防汛墙,防止外来水进入基坑;
③基坑内四周埋设排水盲管和抽水设备,一旦发生基坑内积水随即排水;
④有应急供电和排水设施保证可靠性。
(2)降水结束时间:水池满水试验合格且具备抗浮条件后,方可停止降水。
3、项目部拆除顶板支架时混凝士强度应满足什么要求?请说明理由。请列举拆除支架时,还有哪些安全措施?
答案:(1)应达到100%的设计的混凝土抗压强度标准值。理由:顶板跨度超过8m,混凝土强度达到100%设计抗压强度后可拆除后方可拆除。
(2)①拆除现场应设作业区,其边界设警示标志,并由专人值守,非作业人员严禁入内。
②拆除采用机械作业时应由专人指挥。
③拆除应按施工方案或专项方案要求由上而下逐层进行,严禁上下同时作业。
④严禁敲击、硬拉杆件和配件。
⑤严禁抛掷杆件、配件。
⑥拆除的杆件、配件应分类码放。
4、请说明监理工程师制止项目部施工的理由
答案:现浇钢筋混凝土池体的防水层、防腐层施工之前进行满水试验。
5、满水试验前,需要对哪个部位进行压力验算?水池注水过程中,项目部应关注哪些易渗漏水部位?除了对水位观测外,还应进行哪个项目观测?
答案:①应对预留孔洞、预埋管口及进出水口的临时封堵结构进行压力验算。
②池壁与底板交界处、预埋管周围。
③沉降量。
6、请说明满水试验水位观测时,水位测针的初读数与末读数的测读时间;计算池壁和池底的浸湿面积(单位; m2)。
答案:(1)池底标高: 0-0.25-4.5=-4.75 (m)
满水试验设计水位高度: -1.25- (-4.75) =3.5 (m)
满水试验注满水用时: 3.5+2+2=3.75d
注水值设计水深24h后,测读初读数为第4.75d;(测读水位的初读数与末读数的间隔时间应不少于24h,测读末读数为第5.75d。
(2)池壁浸湿面积:
池壁浸湿面积(不含内隔墙及套管): [2x (16+18) - 3x0.25]x3.5-3.14*0.92/4 = 67.25*3.5-0.63585 =253.375-0.636=252.74 (m2)
池底浸湿面积: 16x18-3x11x0.25=288-8.25=279.75 (m2) 。
